大家好,这里是乐财聚,一门心思关注上海楼市行情,包括新房开盘、二手成交、土地拍卖、政策变化、房企动态等方面,力求为读者带来最新消息。
9月26日,一则消息引发了上海房地产圈所有人的关注。宸嘉发展将与中华企业联合以29.87亿收购上海新枫安企业发展有限公司100%股权及相应债券,其中中华企业占股70%、宸嘉发展占股30%。
这也就意味着,徐汇东安旧改后最后一幅住宅用地127b-23地块寻找到最终买家,宸嘉发展的入局也验证了此前的市场传闻。
宸嘉发展小股入局东安旧改
此前,市场早有传闻称宸嘉发展有意参与徐汇东安新村旧改,直至9月26日该消息得到最终验证。
宸嘉发展入局东安旧改的方式是以小股东的形式,参与到其中一幅地块的开发中。
整个徐汇东安新村旧改共有3幅地块。9月5日,中海、招商、中旅、徐汇城投官宣联合开发其中2幅地块,分别是127b-24和125-31地块,根据最新消息,其预计将在今年年底首次入市。

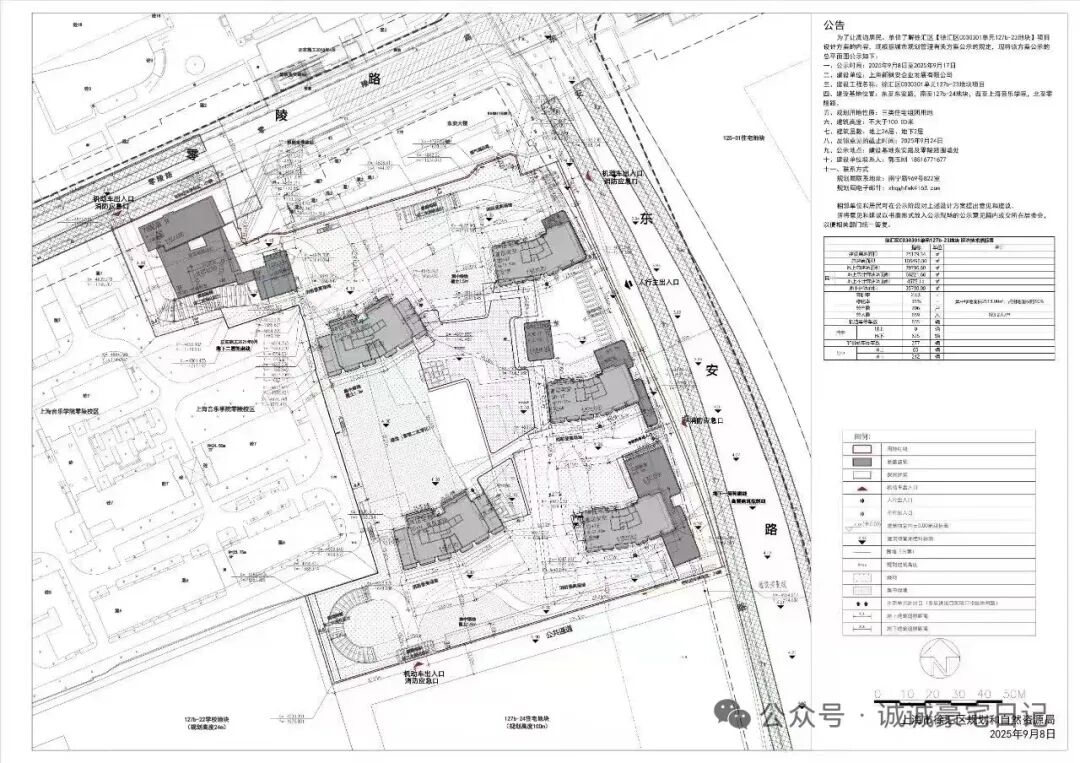
而宸嘉发展与中华企业联合开发的127b-23与上述2幅地块相邻,土地面积25179.34平方米,容积率2.63,计容建筑面积66221.66平方米。
9月8日,该地块设计方案就已公布,规划建设5栋17-25层住宅楼,总计仅206户,项目所有住宅楼首层均设计为架空层,中央规划约7.4米深的下沉式庭院,形成立体景观系统。建筑采用两梯两户设计,层高预计达3.6米。

上海开发赚足眼球 却还没赚钱
值得一提的是,这将是宸嘉发展在上海开发的第三个高端住宅项目。
2022年6月1日,宸嘉发展63.7亿拿下普陀区长风社区W060602单元pt0268-09地块,即是后来的上海宸嘉100·嘉佰道。
项目于2024年6月3日开盘,推出422套住宅全部售罄,成交总额61.78亿。然而,这已是项目的所有住宅,且把联动价从9.8万每平提高到了10.4万每平,但是销售总金额尚不足以覆盖地价成本,想要盈利还需要依靠后续的办公产品。
2024年12月30日,宸嘉发展再次迎来高光时刻,其击败众多国央企,溢价40%、总价43.8亿夺得徐汇区S030501单元N06-22地块,折合楼板价12.6万每平。
2025年4月23日,该项目案名正式发布——嘉佰道·徐汇,如今距离拿地时间已过去9个月,但尚未有开盘消息。

因此可以说,每次宸嘉发展出现都赚足了市场眼球,但是落到实际上却尚未给公司带来盈利。
宸嘉发展目前的管理层大多来自于中海,包括董事长崔帅、总经理郭斌、董事梁飞此前均供职于中海上海公司,在经过北外滩围标事件后陆续加盟宸嘉发展。
背后金主连年亏损 正式公告退市
资料显示,宸嘉发展成立于2020年,内地总部位于上海。多家媒体报道称,宸嘉发展背后的金主是刘益谦,其也是国华人寿的实控人,宸嘉发展成立后代建运营的多个项目均国华人寿,包括国华金融中心、国华合悦家等。
而国华人寿的母公司叫做天茂集团,在深交所上市,股票名称*ST天茂,股票代码000627。*ST天茂主要通过控股子公司国华人寿和华瑞保险从事保险业务,保险业务相关的营业收入占到公司主营业务收入99.99%,是公司的核心业务。
就在宸嘉发展正式入局东安旧改的前一天(9月25日),*ST天茂正式宣布终止上市。

今年8月25日,*ST天茂召开临时股东会,审议通过了以股东会决议方式主动终止公司股票上市事项。9月4日,公司向深交所提交了主动终止上市申请材料。9月10日,深交所正式受理公司股票终止上市申请。
此前,在2024年年报披露季尾声,天茂集团发布了关于无法在预约日期及预计无法在法定期限内披露定期报告的风险提示公告。随后,其未在法定期限内披露年度报告或者半年度报告,且在公司股票停牌两个月内仍未披露,将被实施退市风险警示。
作为天茂集团业绩的主要贡献者,国华人寿近十年来业绩经历了一次过山车。
2014年—2019年,国华人寿净利润稳步增长,分别为14.26亿元、16.48亿元、16.53亿元、27.33亿元、20.55亿元、22.16亿元。
2020年开始出现转折,当年净利润降至11.1亿元。2021年、2022年净利润继续下降,分别为8.49亿元、4.84亿元。
直到2023年,国华人寿巨额亏损11.55亿元,同比下降338.6%。截至目前,其尚未披露2024年全年业绩,最新数据为2024年前三季度,净亏损6.71亿元。
>>>查看更多:股市要闻