当前位置: 爱股网 > 股票新闻 > 正文

29.87亿元!【中华企业&宸嘉发展】东安新村旧改地块

时间:2025年10月19日 18:20

(来源:上海楼市情报)

最新消息,中企&宸嘉拿下东安新村旧改项目127b-23地块!

2025年9月25日,中华企业联合宸嘉发展以29.87亿元收购上海新枫安公司100%股权,正式入局徐汇东安旧改核心地块开发。

3月26日,上海市徐汇区东安新村旧改项目发布了首宗地块(127b-23地块)的协议出让公示。

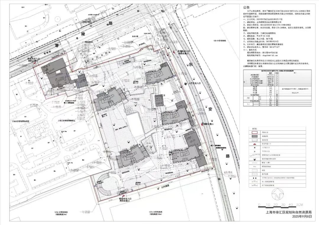
上海市徐汇区斜土社区C030301单元控制性详细规划125、127b 街坊局部调整图

拟协议出让地块为徐汇区C030301单元127b-23地块,土地面积25179.34㎡,容积率2.63,地上计容建筑面积66221.66㎡。中小套型比例和公租房要求均为0。意向用地者为上海新枫安企业发展有限公司(股东为上海徐汇城市更新建设发展有限公司——上海城更公司持股60%、徐汇城投持股40%)。

徐汇东安新村127b-23地块项目规划设计方案已公示。将建5幢17-25层住宅楼,首层均架空。

地块周边4、7、12号线三轨环绕,紧邻4、7号线换乘——东安路站。此外,南侧靠近内环高架路,还有中山南二路、东安路、斜土路等快速路通达全城。

周边一公里范围内由南洋中学,周边江南新村小学、日晖新村小学等教育资源聚集。同时坐拥中山医院、龙华医院等顶级医疗资源;西岸金融城,复地御江庭项目、正大乐城、绿地缤纷城、保利时光里等大型商业环伺。还有东安公园、徐汇滨江绿地、滨江滑板公园、龙美术馆、星美术馆等满足景观休闲需求。

查看更多董秘问答>>

热门新闻

>>>查看更多:股市要闻 内参消息 实时内参 财经日历