(来源:上海楼市情报)
建发·云湖玥作为宝山首个抬板洋房项目,同时也是建发房产「诗意东方」系在宝山的开篇之作。



它打破了传统社区的营造方式,通过约5.4米“全域抬板”的超级底盘设计,将社区垂直分为全域基座、浮岛花园、云上洋房三重境域,实现了更低密、更立体、更安全、更具视野平权的六维革新,为宝山树立了全新的湖居范式。




1地段
上海“最美丽的地方”留给了美兰湖畔,伴随板块产业及生活配套的持续兑现,一幅国际湖居的生活图景已醇熟铺展。如今这里,同步演进着TOD4.0未来生活范式,实践“站、城、文、湖、居”无界融合。建发·云湖玥踞板块核心位置,坐拥约500米一站式超配生活圈。
交通能级跃升:约600米直达7号线美兰湖站,一线畅达静安寺,可换乘13条轨交,换乘网络辐射全城;车行同样便捷,沪太公路与S7沪崇高速公路连接南北主干道与外环,高效通达5大核心区域。


TOP教育资源注入:一路之隔即为最新落户的华二宝山实验学校(在建中,预计2027年投用),标志着板块教育能级的显著提升,菁英成长环境举步即享。

醇熟商业环绕:距离项目约300米即为中集金地美兰城TOD,约70万方的商业综合体,盒马、上影影城等众多品牌首店进驻,北上海潮流生活主场实至名归。
生态底蕴再升级:除了大家熟知的美兰湖(距离项目约700米),2024年开放了约11.47公顷的美兰西湖公园,拥有约4万平方米水域面积、千米环湖景观步道,生态环境再度升级,且距离项目仅约100米。双湖一园环抱,坐拥约244.8万方浩瀚绿意与多元运动配套,是北上海宜居的生态活力大城。

2产品
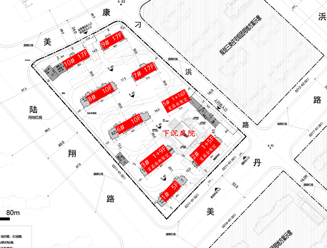
今年9月第七批次土拍中,建发以总价27047万元摘得宝山区BSP0-2102单元0211-02、0212-01、0216-03、0217-07地块地块,楼板价15505元/㎡,装修标准2000元/㎡。

地块出让面积78013.3㎡,分为四个子地块,为居住用地,其中:
0216-03地块东至刁浜路,南至美健路,西至0216-01公共绿地,北至0216-01公共绿地,出让面积23324.7㎡,容积率1.5,建筑面积34987.05㎡;
0211-02地块东至刁浜路,南至0211-01公共绿地,西至0211-01公共绿地,北至美康路,出让面积21128.29㎡,容积率1.6,建筑面积33805.26㎡;
0212-01地块东至0217-04公共绿地,南至美健路,西至刁浜路,北至0217-01地块,出让面积16124.39㎡,容积率1.2,建筑面积19349.27㎡;
0217-07地块东至0212-03公共绿地,南至0212-02公共绿地,西至刁浜路,北至美康路,出让面积17435.92㎡,容积率1.2,建筑面积20923.1㎡。

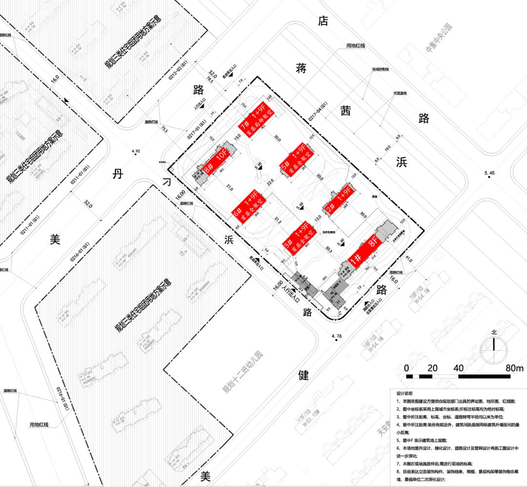
四个地块规划设计方案均已出炉:
0212-01地块拟建8栋4-8层住宅;
0211-02地块拟建9栋5-17层住宅;
0216-03地块拟建7栋9-10层住宅+1栋14层保障房;
0217-07地块拟建7栋8-10层住宅;




项目规划洋房与叠加两类产品,洋房户型建面约92-122㎡,叠加户型建面约136㎡起,户型规划兼顾居住实用性与空间感,打造贴合湖居生活的居住空间,适配不同家庭的置业需求。
浮岛洋房示意图过程稿,非交付标准,仅供参考2月7日,建发·云湖玥美学展厅于宝山美兰湖中集金地广场A馆1F中庭正式开放,现场人气汇聚。作为板块久违的新作,项目一面市即引发广泛关注。建发·云湖玥,不仅是宝山首个「浮岛洋房住区」,亦是建发房产2026年「诗意东方」系在宝山的开盘力作,为美兰湖带来了全新的居住想象与空前的市场热度。



建发房产拥有四十余年房地产开发经验,布局全国七十余城。入沪二十余载,已成功在上海打造三十余个品质项目,累计交付超2万户。2025年,上海多盘持续蝉联区域销冠,以扎实的品牌实力与卓越产品力赢得市场信赖。


持续深耕宝山的建发房产,此前已在此打造三座标杆作品,不断推动区域人居迭代。
2026年,建发载誉归来,以融合当代审美与东方意境的美学力作——诗意东方系【建发·云湖玥】敬献美兰湖。
>>>查看更多:股市要闻